双拜巷别墅

Success Case

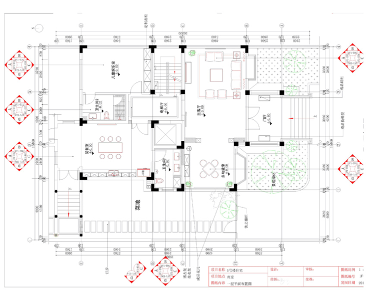
本案例是南京江宁某私人别墅,建筑面积约800平方,厨房后来重建约140平方,业主是一对中年夫妻,事业有成,整体风格偏向于稳重的中式风格,花梨木饰面板,莎安娜天然大理石地面,前后设计到施工约13个月,地下一层地上4层,地下有影音室、酒窖,顶楼露台做阳光晒房,固定家具选用实木定做,活动家具配大红酸枝木实木家俬,从而保证色调和风格的统一。